今天是:2015年3月4日 星期三 欢迎光临亚博取款曝顾秒到账!
浩学风采
当前位置: 首页 >> 浩学风采 >> 正文
【浩学榜样】高雨萌
来源: 发布时间:2023-11-03 10:20:47 阅览次数:

19ECE

高雨萌,女,共青团员,环艺20-1级学生。曾任亚博取款曝顾秒到账综合协调部负责人,学院团委副书记。曾获亚博取款出账秒到校级三好学生,校级优秀团员,连续三年获得学习奖学金,连续两年获得思想品德奖学金。

亲爱的学弟学妹们,成为一名优秀的设计师是我儿时以来的梦想。入校之初我便确立了,刻苦钻研的学习目标。目前绩点91.04分,已保送至亚博取款出账秒到设计学专业攻读硕士研究生。

借此机会,我想和同学们分享几点自己的经验。好的环境艺术设计所传达的永远不会是浮于表面,它所传达的视觉艺术是值得细品和深究的。因此,环境艺术设计十分考验同学们的艺术素养和美术功底。首先,我想和同学们分享一下在本人实习期间的认识与体会。


 实习经历  


20B50

23年7月至今,我有幸到北方通建科技集团有限公司实习,在短短几个月的实习期里,我进一步了解了室内设计的深刻内涵,从书面的理论水平攀升到与实际结合的新的高度。同时,我对具体设计流程,平面图,立面图,剖面图以及效果图的要求规范都有了更深层的体会,空间概念也逐渐明晰,对未来有了新的定位,这段实习经历在我未来的设计生涯中将发挥不可替代的作用。

实习期间我的主要工作主要有以下几方面:

1、工程助理:主管工程方案的设计助理及施工监理;

2、设计师助理:协助公司设计师完成方案设计,参与施工现场治理,预算报价,客户洽商,并随材料选购职员进行现场的材料确认与购买。

2059A

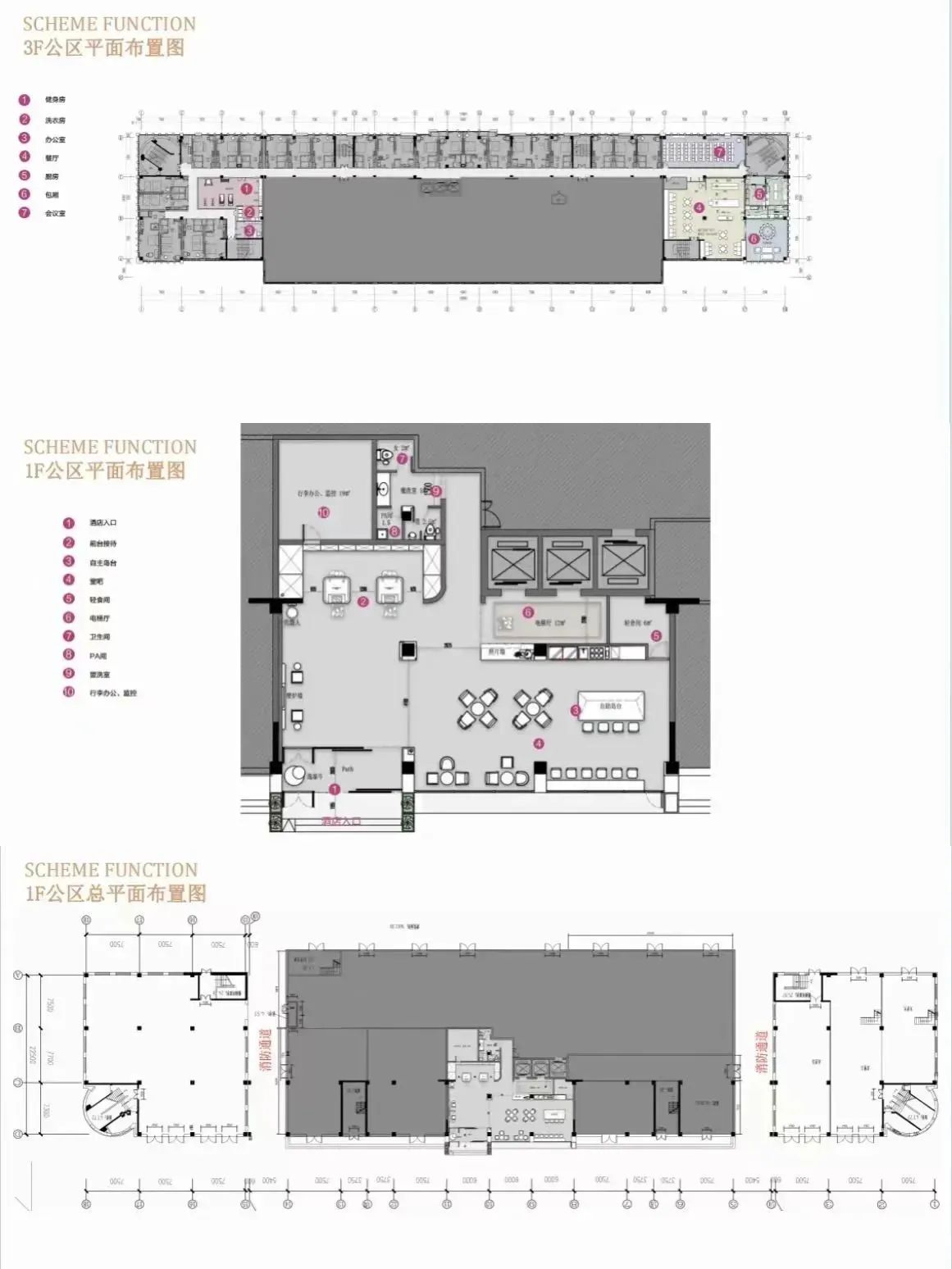
连锁酒店公共区域平面图制作与效果图设计

宝贵的实习机会让我我更深刻地了解了设计行业的个性和潜力。虽然已经得到保研机会,但我也对未来在环境设计专业就业方面有了更多的信心。纸上来得终觉浅,绝知此事要躬行。亲爱的学弟学妹们,在日常学习中我们不仅要将设计的理论掌握好,更要充分地去认识市场、了解市场,珍惜每一次实践机会。


工作成果展示



学生工作


我深知,一个人的成长是需要积累和磨练的。因此大一入学我就加入了亚博取款曝顾秒到账的办公室部门工作,并于大二留任综合协调部任负责人。大三继续留任学院团委副书记。期间负责团委学生会的日常运行成 为团委学生会的“幕后人员”。开学迎新服务、物资管理、值班记录、形式政策课的开展、学生会志愿者的培训、院校活动的辅助工作都有我和学生会成员的身影。在职期间努力做好同学们与学院的桥梁,以踏实肯干、认真负责的工作态度,完成好每一份工作。

43C28

学生会的日常运行成 为团委学生会的“幕后人员”。开学迎新服务、物资管理、值班记录、形式政策课的开展、学生会志愿者的培训、院校活动的辅助工作都有我和学生会成员的身影。在职期间努力做好同学们与学院的桥梁,以踏实肯干、认真负责的工作态度,完成好每一份工作。


志愿服务


今天的青年生逢其时,更重任在肩。步入大学之后,我始终在思考着,自己怎么才能成为对社会有用的人。为了回应青年人的责任和使命,我人心公益事业,积极参加志愿服务。我在北京市清明节公墓志愿活动中感受红色精神的熏陶、在中国国际服务贸易交易会志愿活动感受中国经济贸易的飞速发展、在北京冬奥会志愿活动中感受国家的青春活力、北京市毛主席纪念堂志愿服活动中体会家国情怀。

D266B

立足北京,服务首都,砥砺青春,挥洒热血,回首过去的三年,我始终肩负着责任与使命。在未来,我也依然会用信心和努力去迎接更大的挑战。



打印】 【关闭